Munitsipaaleluruumi üürimine

Kirjeldus:

Võru vallale kuuluvad eluruumid antakse üürile esitatud avalduse alusel lähtuvalt alljärgnevast prioriteetsusest:

  1. isikutele, kelle eluruumi tagamise kohustus tuleneb sotsiaalhoolekande seadusest (esmajärjekorras);
  2. vallaga teenistus või töösuhtes olevale isikule;
  3. eluruumi lähipiirkonda tööle tulevale isikule;
  4. eluruumi lähipiirkonnas töökohta omavale isikule.

Kui eelnimetatud isikud puuduvad, antakse eluruum üürile muudele isikutele.

Eluruumi üürile andmise otsustab vallavalitsus ja isikuga sõlmitakse üürileping. Eluruum antakse üürile kuni 5 aastaks. Eluruumi üürilepingu lõppemisel ja eluruumi vajaduse säilimisel võib vallavalitsus üürniku põhjendatud avalduse alusel üürilepingut pikendada.

Võru vallas asuvad munitsipaaleluruumid, mida antakse üürile, paiknevad aadressidel:

  • Tammesalu, Vana-Vastseliina küla;
  • Võidu 29, Vastseliina alevik.

Hetkel on võimalik üürida kortereid Vana-Vastseliina külas Tammesalu kortermajas ja Vastseliina alevikus Võidu tänav 29 kortermajas.

Vana-Vastseliina külas Tammesalu korterelamus on üürile anda kolm korterit:

  • kahetoaline korter nr 5, suurusega 52,4 m
  • kahetoaline korter nr 7, suurusega 52,4 m
  • kolmetoaline korter nr 1, suurusega 61,6 m2

Tammesalu kortermaja renoveerimist on kaasrahastanud SA KredEx munitsipaal-üürielamufondi suurendamise projekti raames. Vastavalt projekti tingimustele on võimalik kortereid üürida valda saabuvale uuele tööjõule või sotsiaalsetesse riskirühmadesse kuuluvatele isikutele, keda vallavalitsus peab vajalikukus majutada munitsipaal üüripinnale.

 

Võidu tn 29 kortermaja on renoveerimine on kaasrahastatud sihtasutuse KredEx toetusprogrammist kohaliku omavalitsuse üksuse elamufondi arendamiseks. Vastavalt toetusprogrammi nõuetele on kortereid võimalik üürida isikutele, kes vahetavad elukohta Vastseliina lähipiirkonda seoses töökoha asukohaga kellel on kehtiv töö- või teenistussuhe või kellega sõlmitakse töö- või teenistusleping.

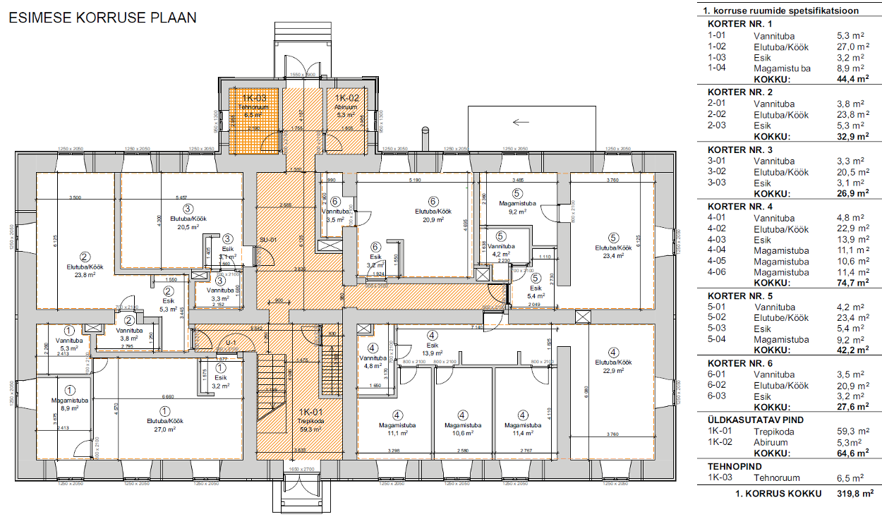
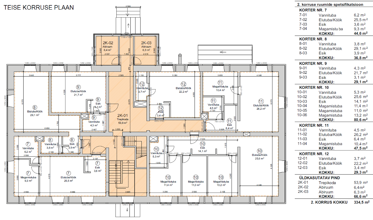
Vastseliina alevikus asuvas Võidu tänav 29 kortermajas on üürile anda viis korterit:

  • korter 5, suurusega 42,2 m2
  • korter 6, suurusega 27,6 m2
  • korter 8, suurusega 36,8 m2
  • korter 10, suurusega 80,6 m2
  • korter 12, suurusega 29,3 m2

Võidu tn 29 korterite asendiplaanid:

Maksumus:

Munitsipaaleluruumide üüri suurused on kehtestatud Võru Vallavalitsuse 17.10.2023 korraldusega nr 730 „Võru valla omandis olevatele eluruumidele üüri kehtestamine". Üürile lisanduvad kõrvalkulud (näiteks vesi, kanalisatsioon, elekter, internet, küte, prügivedu, korteriühistu haldusteenus).

Õigusaktid:

Võru vallavara valitsemise kord peatükk 6 „Eluruumi üürile andmine"

Vastutaja:

Majandusspetsialist Aivi Jääger, telefon 5745 0366, e-post aivi.jaager@voruvald.ee

 

Taotlemine elektrooniliselt

Vajalikud sammud:

Sisenege menüüribal nupu "LOGI SISSE" kaudu Võru valla veebikeskkonda. Vajalik on ID-kaart. Veebikeskkonda sisenedes tuvastatakse Teie isik ja kuvatakse rahvastikuregistri andmetega eeltäidetud vorm. Vormi lõpus pärast nupule "SAADA" vajutamist, tuleb esitatud andmed digitaalselt allkirjastada.

Toimingu õnnestumiseks palun kasutage ID-kaardi tarkvara värskeimat versiooni ja seadistage veebilehitsejas lisamoodulid õigesti (juhend: https://id.ee/index.php?id=36636).

Jälgige vormi täitmise kulgu! Taotlus on esitatud korrektselt kui te saate teate:

Vorm on saadetud
Vormi saaja nimi: Võru Vallavalitsus

Viide:


 


Taotlemine pabervormil

Vajalikud sammud:

Täitke avalduse vorm paberkandjal. Avalduse vormi saab Võru Vallavalitsusest või all olevalt viitelt.

Avalduses märgitakse järgmised andmed:

  • taotleja isiku- ja kontaktandmed (nimi, isikukood, telefoninumber, aadressandmed);
  • andmed taotlejaga koos elavate perekonnaliikmete ja ülalpeetavate kohta, kellega koos eluruumi taotletakse;
  • eluruumi taotlemise põhjus;
  • eluruumi kasutamise soovitav tähtaeg.

Vajadusel on vallavalitsusel õigus asjaolude selgitamiseks nõuda taotlejalt täiendavaid dokumente ja andmeid.

Vajaminevad dokumendid: